2 Car Starting Price
$420,0003 Car Starting Price
$460,000
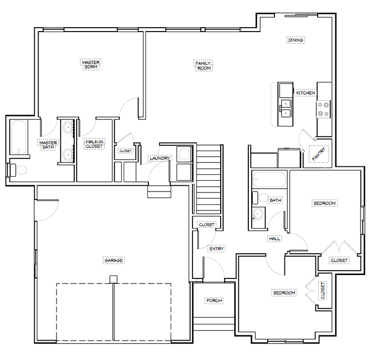
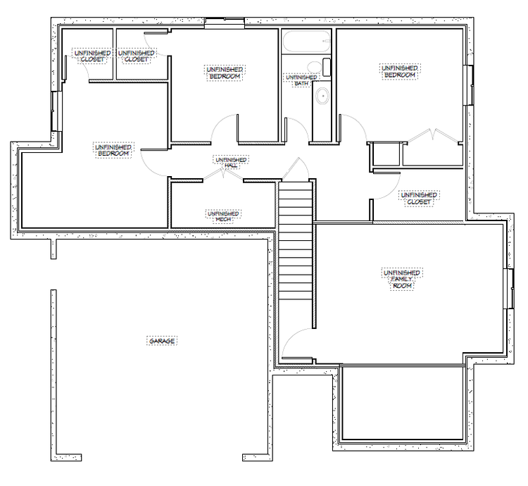
2830
Total Sq Ft
3
Beds
2
Baths
1422
Finished Sq Ft
Main Floor

Basement
